10×10 Bathroom Layouts With A Shower to Inspire Your Next Remodel
Having a 10′ × 10′ bathroom doesn’t mean you need to settle for a design that lacks comfort and style. With the right amount of planning, you can find creative 10×10 bathroom layouts with a shower that allow you to have the roomy bathing experience you want. Below, I’ll share five of my floor plans that include options to organize the room so getting ready in the morning runs smoothly, traffic flows naturally, and everything works together. Inside, you’ll find designs that include tub/shower combos for families, separate shower-and-tub layouts, setups for spa-style vibes, private water closets, and wet-room concepts to give a more open feel. Each plan shares tips you can use to make the most out of your 10′ x 10′ space with usable clearances, and placement of fixtures and cabinets, so you know what fits before you tear anything out.
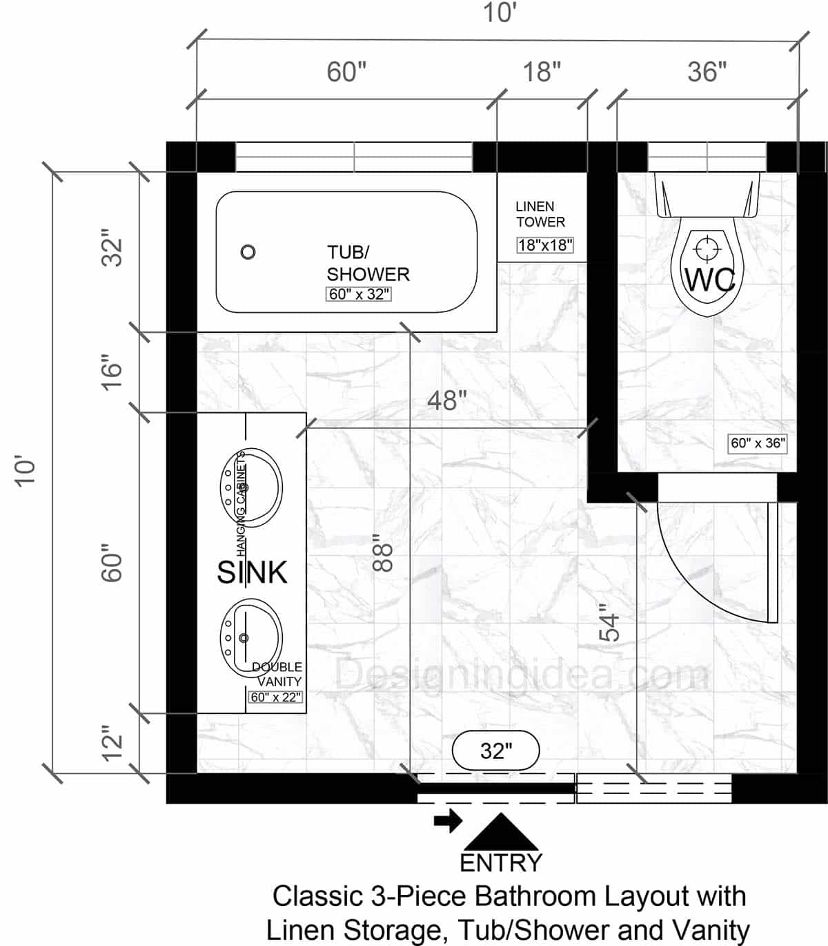
Classic 3-Piece Bathroom Layout with Tub & Shower Combo, Linen Closet, And Vanity
This bathroom offers privacy by separating bathing, grooming, and toilet functions into separate zones that allow simultaneous use for busy households.

Floor Plan Details: This bathroom works well because it offers a 60″ x 32″ tub/shower combo next to a linen closet, and a double vanity with its own private water closet. This arrangement allows the toilet to be enclosed in its own 3′ x 5′ compartment, so someone can bathe or be at the vanity while another uses the water closet. Since many bathrooms of this size struggle with storage issues, there’s a linen tower placed between the tub and toilet room that’s perfect for storing towels. The roomy 60″ dual vanity is advisable for couples or families with kids who share the space, so two can get ready simultaneously. The overall effect is a good traffic flow with a wide center aisle that flows to the outswinging door.
Dimensions:
- Room size: 10′ x 10′ (nominal).
- Tub/shower: 60″ L x 32″ D.
- Linen tower: 18″ W x 18″ D.
- Double vanity: 60″ W x 22″ D.
- Toilet room: 36″ W x 60″ D (meets typical code with 15″ minimum to centerline on each side and 24″+ in front).
- Main door: 32″ wide.
- Central walkway: 48″ (comfortably exceeds the common 36″ minimum).
Design Tips:
- Vanity lighting: Mount twin sconces to flank each mirror (or a light bar above each) at eye level (66″) for grooming.
- Moisture management: Give the WC (toilet area) its own exhaust fan in addition to one near the tub/shower.
- Add a timer to the exhaust fans: For convenience, connect a timer switch to each fan.
- Choose a glass partition over a curtain: A clear glass tub screen opens the sightlines and makes the 10′ x 10′ room feel larger.
- Linen closet details: Use full-height doors with adjustable shelves in the 18″ wide tower.
- Counter usability: With a 22″-deep vanity top, choose offset faucets to preserve room for two users.
- Door strategy: Keep the main entry on an outward swing.
- Tile continuity: Run the same type of wall tile from the tub throughout the space.
Bathroom Floor Plan With Double Vanity, Separate Shower & Tub
This plan separates the shower and tub, and places them on the same wall with a broad central aisle, and a double vanity and toilet on the opposite side.

Floor Plan Details: With dual bathing options from a separate large shower and a full-size soaking tub, this bathroom design offers versatility and more luxury feel. The 48″ x 36″ shower and 66″ x 32″ tub share the upper wall, while the 72″ x 22″ double vanity and 42″ x 42″ toilet area share the bottom side. There’s a small partition or pony wall separating the vanity from the toilet for added privacy. The room offers a wide center aisle at 58″ in front of the vanity and narrowing down to 46″ in front of the tub that promotes easy movement through.
Dimensions:
- Room size: 10′ × 10′
- Entry door: 32″
- Double vanity: 72″ W × 22″ D
- Shower: 48″ × 36″ with a 24″ pocket door
- Tub: 66″ × 32″
- Central aisle from the vanity to the opposite fixtures: 58″
- Clearance to tub: 46″
- Toilet nook clearances: 42″ in front and 42″ to the side
Design Tips:
- Glass enclosures: Use frameless shower glass and a tub screen to keep sightlines open.
- Vanity storage: Use deep drawers under the 72″ vanity for bath items.
- Waterproof lighting: Pair sconces at 66″ on either side of the mirrors and pair with a damp-rated recessed downlight over the shower and tub.
- Niches & ledges: Build a 12″-high ledge over the tub ledge and a recessed niche in the shower for bathing essentials.
- Ventilation: One quiet fan near the shower and a second near the toilet nook on timer controls.
- Warmth & comfort: Consider installing a radiant floor heating system and a heated towel bar to enhance the spa-like feel.
- Hardware harmony: Use thermostatic/pressure-balanced valves and matching hardware finishes across for a unified look.
Why it works: Creates a “Spa” like feel by having both a shower and a tub, plus a full double vanity.
Wet Room Bathroom With Open Shower And Soaking Tub
This bathroom uses a waterproofed wet zone that has a curbless, door-free shower and a full-sized soaking tub that delivers spa-level luxury.

Floor Plan Details: By having the bathroom have an open corner shower area it becomes a true wet-room zone that allows water to run throughout without worry of damage or the need to manage drainage. Both the 66″ × 32″ soaking tub and 60″ x 60″ curbless entry shower are placed on the upper side of the room. The door-free shower enclosure and tub give a luxury spa feel and make a stylish focal point when you enter. There’s a 28″ aisle separating the tub and the shower entry that opens to a wider 63.6″ walkway in front of the vanity and the toilet. This space allows for great circulation with room for a wheelchair to turn, or a parent-and-child to use without crowding. The double vanity measures 60″ x 22″ and allows room for one or more people to use the space at the same time. Directly across from the vanity sits the toilet in the other corner with a full or half-wall partition to add some privacy.
Dimensions:
- Room size: 10′ × 10′
- Entry door: 36″
- Double vanity: 60″ W × 22″ D
- Open curbless shower: 60″ × 60″, with ¼” per foot floor slope for water drainage
- Soaking tub: 66″ × 32″
- Central clear floor: 63.6″
- Passage between tub and shower: 28″
- WC nook depth: 36″, with comfortable front and side clearances
Design Tips:
- Waterproof zone: Use continuous waterproofing with a liquid membrane across the entire wet half of the room, and lapping up walls to prevent damage.
- Contain the spray: Use a single frameless glass panel at the shower nearest the vanity to keep it dry while preserving the open feel.
- Non-slip surfaces: Choose floor tile with a higher slip rating, such as R10/11 or ≥ DCOF 0.42 wet, and run the same tile into the shower for a seamless look.
- Drain strategy: Add a linear drain along the back wall with a floor slope of ¼”-per-foot so that water runs to the back.
- Warmth & fog control: Add radiant floor heat in the wet zone and heated, anti-fog mirrors on top of the vanity wall.
- Storage niches: Install recessed niches in both the shower and over the tub for holding your bath products.
- Ventilation: Use a high-CFM quiet exhaust fan near the shower and add a second intake near the toilet.
- Accessible touches: Add a bench and grab bars to the shower area if you plan to age in place or want handicap accessibility.
Why it works: The wet rooms provide a luxurious “wet room” experience on one side with a dry vanity and toilet area on the other.
Accessible Bathroom Design With Curbless Shower
With a full 60″ turning radius paired with a curbless 60″ × 36″ shower, this bathroom promotes accessibility and ease of movement in a compact 10′ × 10′ bathroom.

Floor Plan Details: This bathroom gives you true accessibility with a 60″ turning circle and a 60″ x 36″ curbless shower that allows for easy entry for the disabled or those who desire more room. For privacy, there’s a toilet in a 3′ × 5′ nook, however, one can remove the nook to allow side transfer and install a fold-down bench in the shower that supports seated bathing. The fixtures are pushed to the outside perimeter to keep the center clear for mobility devices or the movement of a caregiver. Along the lower left side is a 48″ × 22″ double sink vanity with extra knee space below to accommodate those in a wheelchair if necessary. Above the sinks, there’s a mirrored cabinet for holding some essentials.
Dimensions:
- Room size: 10′ × 10′
- Entry door: 36″ outswinging
- Central turning space: 60″ diameter
- Shower: 60″ × 36″, curbless enclosure
- Toilet alcove: 60″ × 36″
- Vanity: 48″ W × 22″ D
- Clear run from vanity to opposite wall: 98″
- Typical clear paths at fixtures: 36″ in front and alongside for approach
Design Tips:
- Remove the toilet partition for full accessibility for people with disabilities.
- Shower details: Slope the shower/wet zone ¼” per foot leading to a linear drain in the back.
- Add a handshower wand on a sliding bar and install grab bars for better disabled accessibility (33″–36″ is typical).
- Non-slip flooring: Choose a floor tile with a high wet-traction rating and keep the grout joints smaller to help with grip.
- Vanity usability: Target a 34″ max counter height with a 27″ knee space underneath and 8″ to 11″ deep toe kick.
- Use a single-lever or touch faucet and tilt-down mirror to help with usability.
- Outswing door: Use an outswing door to keep the main passage obstruction-free.
- Reach ranges: Keep shelves, towel bars, and controls within 15″–48″ above the floor; place shower controls near the opening for seated reach.
- Lighting: Layer task lighting at the mirror with motion detection and add a night-light for extra guidance.
Why it works: Targets common universal-accessibility bathroom design targets without feeling cramped.
Bathroom Floor Plan With Privacy Toilet, Tub & Shower, And Double Vanity
This well-balanced bathroom plan focuses on privacy and efficiency by creating a private toilet behind a sliding partition, including a tub and shower combination next to a linen closet, and offering a double vanity with a large central area that keeps the design feeling open and easy to share.

Floor Plan Details: This bathroom is excellent for those looking for privacy with a water closet located inside a walled sliding door partition, so grooming or bathing can happen without any shared awkwardness. As you enter the room, you’ll find a logical sequence that runs from the door to the tub and shower on the left, the vanity on the right and the toilet straight ahead. With a linen closet located right next to the shower area its easy to grab a towel when needed. The large center area allows for open circulation and keeps the pace comfortable and easy to walk around in, even with two users.
Dimensions:
- Room size: 10′ × 10′
- Entry door: 30″
- Double vanity: 72″ W × 22″ D
- Tub/shower: 60″ L × 32″ D
- Linen cabinet: 24″ W × 18″ D
- Semi-private WC: 66″ L × 36″ W
- Central clear aisle: 66″ from the tub apron to the opposite vanity edge
- Clear floor in front of vanity/right wall: 48″
Design Tips:
- Water closet enclosure: Use a pocket door and insulate the partition if you want to dampen sound.
- For the toilet area add its own low-sone exhaust on a timer.
- Towel reach: Mount towel and robe hooks near the tub.
- Storage upgrading: Inside the 24″ linen tower, add adjustable shelves or a lower pull-out hamper for dirty clothing.
- Add a shallow medicine cabinet over each sink to keep accessories handy.
- Tile strategy: Run the same style of wall tile from the tub behind the linen closet to visually link the zones.
- Choose a slip-resistant floor tile throughout the space..
- Lighting: Pair vanity sconces at 66″ from the floor and use a damp-rated fixture over the tub and ambient lighting at the toilet nook.
- Door width note: If accessibility is a goal, consider upsizing the 30″ entry to 32 to 36″ for easier entry.
- Comfort adds: Radiant floor heat will increase the room’s comfort, especially in colder climates.
Why it works: This bathroom adds privacy for those using the toilet while still leaving a large shower and tub combo and a double vanity.
Notes for all layouts
- Toilet rough-in: 12″ typical from finished wall to flange center and keep a 15″ min from the centerline to each side (36″ bay is ideal).
- Front clearances: target 24″+ in front of the toilet and 21″ to 24″+ in front of any vanity, tub, or shower.
- Ceiling & venting: confirm exhaust fan sizing (e.g., ≥1 CFM per sq ft → 100 CFM) and egress per your local code.
- Glass doors: check door swing and use safety glazing near tubs and showers.
- Local code overrides: Always verify local plumbing, electrical, and accessibility rules for your area.
For more images like this, take a look at our 10ft by 12ft bathrooms here.